Aluplast Intertec 85 MD
The Intertec 85 MD profile series is an advanced system of window profiles that, thanks to the use of innovative solutions, offers excellent technical parameters and high comfort of use of windows.
The profiles of the system are characterized by a timeless, classic design with balanced proportions, perfectly fitting in with current trends in shaping the appearance of facades.

Technical Details:
Heat transfer coefficient: Uf= 1,0 W/m2K
Wind resistance: C4
Waterproofness: 9A
Sound insulation: 33(-2;-5)dB
Maximum glazing width: up to 51 mm
Burglar resistance: RC2
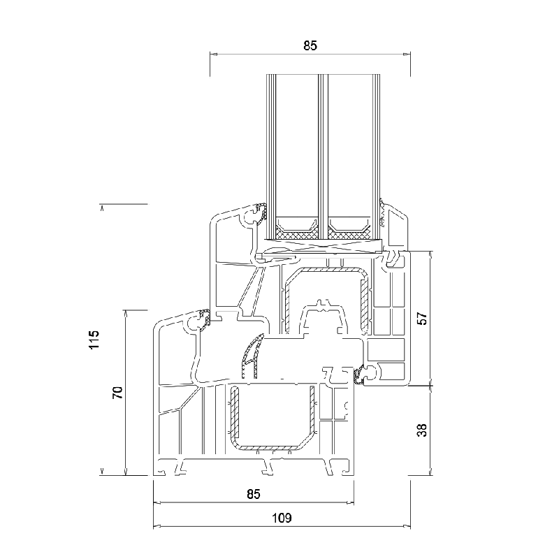
Installation depth: 85 mm
Width of frame/sash set: from 115 mm
Bonding inside technology: yes
Number of chambers: 7 in the frame; 6 in the sash
Sealing system: MD 3 seals
Available combination design: classic-line

Characteristics:
Low folds of profiles with a width of 115 mm: The low folds of profiles with a width of 115 mm allow to maximize the surface area of the glazing, thus providing better thermal properties and bringing more light into the room.
New two-chamber design of the central sealing fin: The new fin is highly resilient and reacts dynamically to the air pressure acting on the sash, increasing the tightness of the entire structure. Thanks to the fin sealing the window structure on its perimeter, a so-called dry chamber is separated in which the hardware works. Isolating the mechanisms from external conditions significantly increases their lifespan.
Bonded glass option: The special design of the sash allows the use of glass bonding technology, which makes it possible to create stable window structures with even larger dimensions.
Excellent thermal parameters: Aluplast Intertec 85 is an excellent choice for those who are looking for solutions that are not only aesthetically pleasing, but also energy efficient. An installation depth of 85 mm, seven chambers in the frame and six in the sash, the possibility of using glazing packages up to 51 mm thick, and a cohesive central sealing system guarantee excellent thermal insulation.



Premium Hardware:
To deliver impeccably functional products and provide the best experience for our customers, we have chosen to work exclusively with top manufacturers from Europe for the hardware of our doors and windows.




Triple Glazing Package:
Triple glazing is produced similarly to double glazing but uses three sheets of glass, separated by two Warm Edge spacers. The total thickness of a triple glazing unit is typically 42 mm and is mainly installed in profiles with a minimum construction depth of 70 mm.
Standard / Premium configurations possible:
- 4S + 4F + 4Lowe + Ar + WE
- Neutral Glass SN 70/37 + 4F + 6 Lowe + Ar + WE
- 6mm SKN 176 II ESG, MCM + 4mm F + WE-N + Laminated 44.2 Lowe, MCM, Ar 90% + pressure valve
- 4.4.2Lowe + 4F + 4.4.2 Lowe + Ar + WE

Types of glass used in insulated glazing:
-
Float Glass (clear):
Produced by floating a continuous strip of glass using the “float” technology.
- Low-E Glass (low emissivity): A clear, transparent glass coated with a metal oxide film. This film allows light to pass through while reducing heat transfer, thus minimizing heat loss.
- Solar Control Glass (4 Season): A flat glass with a special transparent coating. It reflects long-wave infrared radiation and a large portion of solar energy.
- Reflective Glass: A monolithic, reflective glass obtained by vacuum deposition using magnetron technology (soft-coat, OFFLINE) or pyrolytic technology (hard-coat, ONLINE).
- Ornamental Glass: Features a textured surface, available in a wide range of patterns and colors.
- Tinted Glass: Created by adding metal oxides during the melting process, this glass absorbs a significant amount of solar energy, preventing excessive heat entry.
- Duplex Glass (anti-burglary / laminated): A laminated glass made by bonding two sheets of float, tinted, reflective, or ornamental glass with one or more layers of polyvinyl butyral (PVB) film. It is available in transparent, colored, or opaque options and is known for its rigidity, adhesion, and elasticity. In the event of impact, PVB films hold the glass fragments together.
- Tempered Glass: Treated through a special process to improve surface flexibility. When broken, it shatters into very small pieces, reducing the risk of injury.
Warm Edge Spacer:
Also known as the “warm spacer,” it is used to separate the glass panes in triple or double glazing. This spacer has a significantly lower linear thermal transfer compared to traditional aluminum spacers. Made of a thermoplastic composite material, the Warm Edge spacer is a poor thermal conductor, resulting in more efficient edge insulation.

Warm Edge Standard

Swisspacer Black

Swisspacer Brown

Swisspacer Grey
Muntins:
Muntins or Grids are decorative elements available in various thicknesses (8, 18, 26, 28, 35, or 45 mm), shapes, and colors, applied to the exterior of the glass or incorporated within the insulated glazing unit.


Exterior Muntins


Interior Muntins
Colour Palette:
*These colours are orientative and may present some difference due to chromatic variations of screen calibration.
AP 19
AP 20
AP 21
AP 22
AP 35
AP 39
AP 03
AP 04
AP 07
AP 08
AP 21
AP 14
AP 36
AP 37
AP 40
AP 60
AP 61
AP 63
AP 65
AP 71
AP 79
AP 86
AP 90
AP 91
AP 01
AP 02
AP 11
AP 23
AP 25
AP 26
AP 27
AP 28
AP 29
AP 75
AP 93
AP 94
AP 95
AP 05
AP 06
AP 15
AP 30
AP 32
AP 34
AP 41
AP 42
AP 42
AP 44
AP 47
AP 50
AP 52
AP 62
AP 69
AP 87
AP 88
























